600W Series Laser User Manual
A carbon dioxide (CO2) laser tube is a common gas laser that utilizes the energy level structure of the CO2 molecule to generate laser radiation. The CO2 molecule is composed of one carbon atom and two oxygen atoms, and its unique vibrational, rotational, and electronic energy level structure makes it a very effective laser medium.

The operating principle of a CO2 laser tube is based on the energy level structure of electron transitions and molecular vibrations. Initially, the CO2 molecule is in its ground state, with its electrons at a low energy level. When power is applied to the two electrodes of the CO2 laser, the high-frequency electric field excites electrons from this low energy state to a high energy state, forming an excited state. In this high energy state, the excited electrons collide with surrounding CO2 molecules and transfer to a higher vibrational energy level, forming a higher vibrational energy state. These molecules in this vibrational energy state return to a lower vibrational energy state through a non-radiative process. During this return, the molecules' intrinsic vibrational energy is released and radiated as photons. The energy of these radiated photons equals the energy difference between the molecular vibrations, forming a laser beam (a beam with a wavelength of 10.6μm).

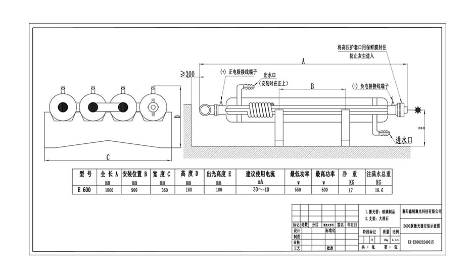
Rigo Laser's E-series CO2 laser tubes are long-life, enhanced CO2 laser tubes developed over many years. They offer high power, a narrow beam, and stable luminous performance. The catalyst-coated discharge tube significantly extends their operating life. Compared to similar products, they offer a compact size, superior spot pattern, and high cutting speed. The E600 and E800 series models are also used for metal cutting and have received positive customer reviews. These products have a 12-month warranty and are fully compatible with our existing power supplies and lens systems, ensuring greater stability and a longer lifespan. Applications include cutting textiles, leather, wood, acrylic, packaging templates, light guides, display screens, and glass.
